ロイヤル ROYAL 801

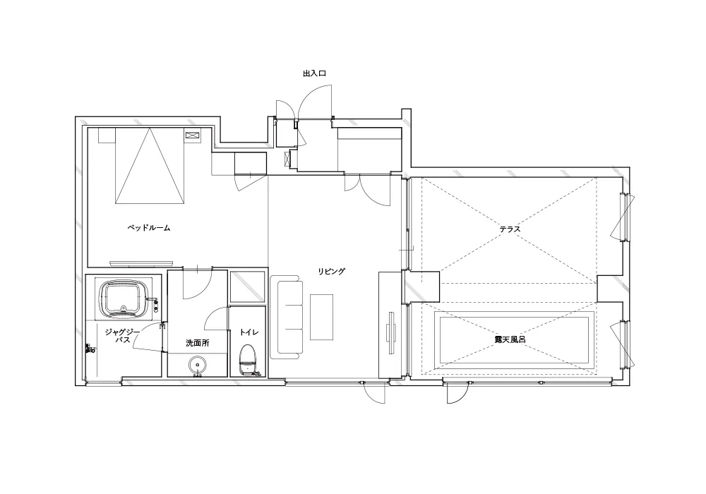
露天風呂
リビング
ベッドルーム
ジャグジーバス
お部屋の特徴
  • 大型露天風呂
  • ジャグジーバス
  • カラオケJOYSOUND f1
  • 最高級マットレス
基本情報
  • ・定員:1-2名
  • ・キングベッド (180×200cm) ×1
設備
<Room 801 設備>
露天風呂・KELVIN/JIORMANIソファ・STEARNS&FOSTER (スターンズ&フォスター) ESTATEマットレス【Bedding costs 1 million yen(100万円)】・65型有機TV・キャンドルウォーマー・レプロナイザー27Dplus/ヘアビューロン27Dplus
<全室共通設備>
ウォーターサーバー・ブルーレイプレイヤー・浴室TV・水中照明・無料WiFi・ヘアアイロン・携帯充電器貸出・電子レンジ・枕元コンセント・アロマキャンドル・各種アメニティ
Room layout間取り図
  • ○…空室あり
  • ▲…残りわずか
  • ×…満室